Mitgliedschaften und Technologie
Leistungsphase:
1 - 6
Standort:
Spandauer Damm 165, 14050 Berlin
Nutzung:
Wohngebäude
Architekten:
Jürgen Krüger
Auftraggeber:
Wassertürme Westend GmbH & Co.
Bauherr:
GbR Wassertürme Westend
Gebäudefläche:
625 qm
Bauvolumen:
875.000 €
Leistungszeitraum:
September 2013
Leistungsphase:
1 - 5
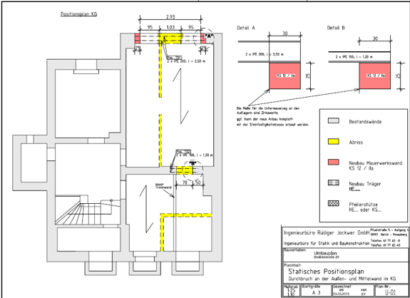
Standort:
Boelckestraße 29, 12101 Berlin
Nutzung:
Wohnhaus
Architekten:
Marks & Co. Architektur GmbH
Auftraggeber:
Ingenieurbüro Rüdiger Jockwer GmbH
Bauherr:
Familie Z.
Gebäudeabmessung:
10m x 11m x 15m
Bauvolumen:
2.450 €
Leistungszeitraum:
September 2013
Leistungsphase:
1 - 6
Standort:
Eichhorsterstraßé 14, 12689 Berlin
Nutzung:
Wohnhaus
Architekten:
Michels Architekturbüro GmbH
Auftraggeber:
BJW Ingenieure GmbH
Bauherr:
Eichhorster Straße Verwaltungs GmbH
Bruttogebäudefläche:
2.400 qm
Bauvolumen:
29.200.000 €
Leistungszeitraum:
Juli 2016 - Januar 2017
Leistungsphase:
1 - 6
Standort:
Rauchstraße 34-40, 13587 Berlin
Nutzung:
Wohngebäude, Kita, Bibliothek
Architekten:
wiechers beck Architekten GmbH
Auftraggeber:
WBM Wohnungsbaugesellschaft Berlin Mitte mbH
Bauherr:
WBM Wohnungsbaugesellschaft Berlin Mitte mbH
Bruttogrundfläche:
32.000 qm
Bauvolumen:
44.800.000 €
Leistungszeitraum:
Dez 2018 - Dez 2020
Leistungsphase:
1-4 sowie 6
Standort:
Schützenstraße 11, 12526 Berlin
Nutzung:
Wohnhaus
Architekten:
Dipl. -Ing. Architekt M. Lagosch
Auftraggeber:
MHMI 17 Wohn-Invest GmbH
Bauherr:
MHMI 17 Wohn-Invest GmbH
Bruttogebäudefläche:
15.560 qm
Bauvolumen:
21.784.000 €
Leistungszeitraum:
Apr 2019 - Aug 2019
Leistungsphase:
1-4 sowie 6
Standort:
Niederbarnimstraße 23, 10242 Berlin
Nutzung:
Dachausbau und Fahrstuhlanbau
Architekten:
Mark & Co. GmbH, Architektur- Ingenieurleistungen
Auftraggeber:
Linden Invest Tyskland A/S c/o
Bauherr:
Dansk Forvaltningsselskab A/S
Bruttogebäudefläche:
432 qm
Bauvolumen:
605.000 €
Leistungszeitraum:
Feb 2018 - Apr 2018